
虽然现在有很多人努力地拼搏,就想在城市里买一套住房,有个立足之地,过上舒适安逸的生活。但随着房价物价的迅速攀升,很多在外面打工的朋友感觉在城里买一套房子变得越来越艰难了,而且城市里住房面积小,空气质量越来越差,那么在农村自己设计盖一座房子就不一样了,空气清新,住房面积又大。
但目前绝大多数农村建房的师傅没有专业的施工图纸,建起来的房子千篇一律,感觉俗气,没有创新。下面小编就为大家介绍一些新农村房屋户型设计图,希望能给大家提供帮助。
一、新农村住宅户型设计图
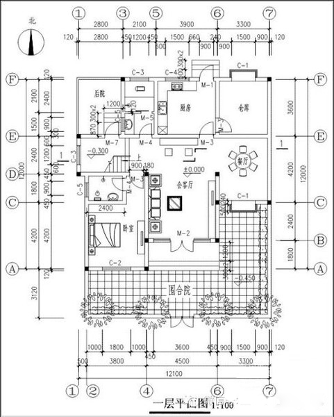
户型设计图一: 地基:12m×12m 占地面积:116平米,总建筑面积:213.53平米;

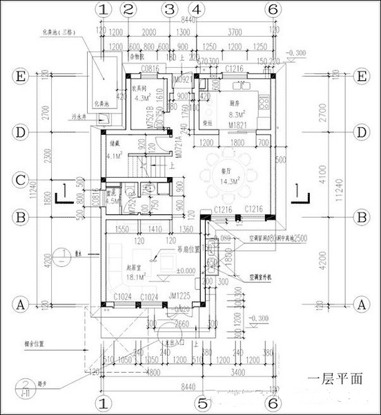
户型设计图二: 地基:9m×13m 占地面积:76.60平米,总建筑面积:185.11平米; 三大材料用量估算:水泥44.64吨,钢筋6.932吨,多孔砖85.643立方米;

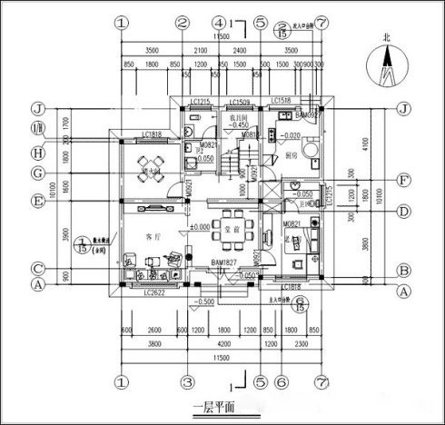
户型设计图三 地基:9m×12m 占地面积:75.1平米,总建筑面积:119.7平米; 三大材料用量估算:水泥32.28吨,钢筋4.753吨,多孔砖74.179立方米;

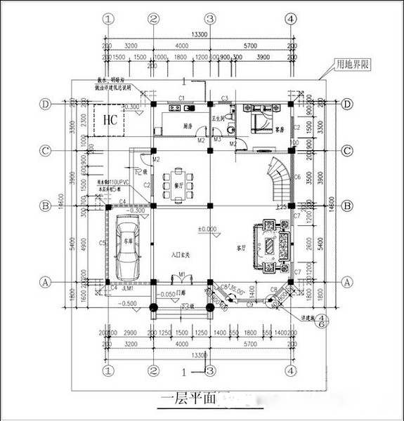
户型设计图四: 地基:12m×10m 占地面积:109.68平米,总建筑面积:287.82平米;

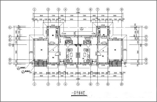
二、农村房屋双拼户型设计图
家里有两兄弟需要建房的可以考虑双拼户型的,一来兄弟间能有个照应,二来可以节省建筑成本。
户型设计图一: 地基:24m×10m 占地面积:178.46平米,总建筑面积:284.2平米;


户型设计图二: 地基:19m×12m 占地面积:123平米,总建筑面积:213.2平米;
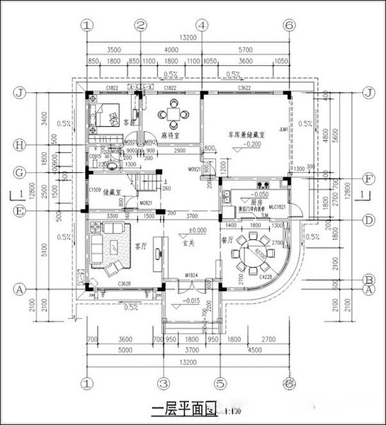
三、农村独栋别墅户型设计图
农村独栋别墅即独门独院,上有独立空间,下有私家花园领地,是私密性很强的独立式住宅,表现为上下左右前后都属于独立空间,一般房屋周围都有面积不等的绿地、院落。这一类型是别墅历史最悠久的一种,也是别墅建筑的终极形式。在城市里花50万买一百平米,在农村却可以建这样的别墅:
户型设计图一: 地基:14m×15m 占地面积:147.7平米,总建筑面积:366.4平米;


户型设计图二: 地基:13m×16m 占地面积:130平方米,总建筑面积:310平方米;

户型设计图三: 地基:14m×13m 占地面积:170.38平米,总建筑面积:412.72平米;

户型设计图四: 地基: 8m×12m 占地面积:88.7平米,总建筑面积:220.9平米。

那么详细的新农村户型设计图介绍给你建造自家房子起到帮助作用了吗?有帮助的话就赶紧回老家建栋别墅豪宅吧!